
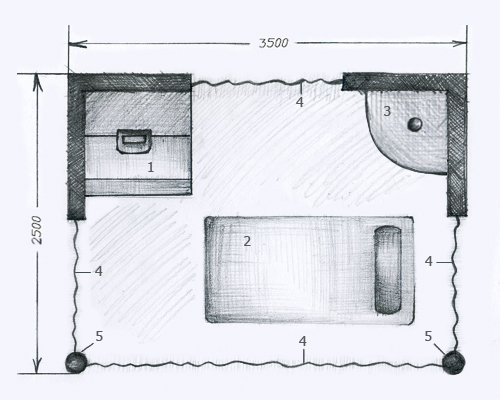
Особенность кабинета – готовый кедровый интерьер с оборудованием: мини-сауна, массажная кушетка, облицовка стен, все выполнено из древесины сибирского кедра. Размеры 3,5Х2,5 м.
Сеансы в мини-сауне «Здравница» проходят в автоматическом режиме. Контроль за состоянием клиента осуществляется электроникой мини-сауны посредством измерения пульса и затраченных килокалорий. Ведется учет количества процедур.
Назначение кабинета:
Кабинет «Сибирское СПА» предназначен для проведения авторского ухода «Сибирское СПА» в условиях SPA и Веллнес центров. Данный спа-уход является стандартизированной процедурой – он предполагает использование профессионально отработанных техник, проводится в строго определенных условиях и в течение заданного времени, характеризуется этапностью выполнения, а также требует медицинского контроля (наличие противопоказаний, контроль самочувствия клиента во время и после процедуры).
Схема размещения оборудования:

- Мини-сауна кедровая "Здравница" - 1 шт.
- Кушетка массажная кедровая - 1 шт.
- Раковина (стеклянная) - 1 шт.
- Шторы - 5 шт.
Оборудование размещено в отдельный модуль, отделанный под любой цвет и фактуру заказчика (на фото цвет - "дерево венге"). Модуль можно размещать в любой SPA-зоне и позволяет комфортно обслуживать одного посетителя.